BUREAU A VENDRE - ST MAUR DES FOSSES - 27.13 m2 - 99 000 €
À 12 minutes à pied du RER A et à proximité des commerces et de toutes les commodités
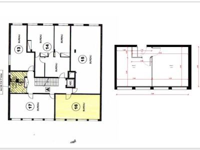
Situé dans un immeuble à usage mixte dans le quartier privilégié d'Adamville, l'agence Ollivier Immobilier vous propose un bureau lumineux d'une surface totale de 27,13m2 divisée en deux bureaux ainsi qu'une entrée avec placard.
Idéal pour professions libérales ou activitées de services et autre.
Rare sur le secteur
À voir sans plus attendre !
Réf : 5024
Caractéristiques
Aménagements
- construit en : 1975
- procédure en cours : non
Informations financières
- prix de vente : 99 000 €
- prix de vente : 3 649,10 € /m2
- honoraires à charge : Du vendeur
- charges mensuelles : 110 €
- charges annuelles : 48,65 €/m2
- total honoraires HT : 7 500 €
Imprimer la ficheVoir nos prestations et tarifs
Classe énergie et classe climat
Consommation énergetique
Emissions de Gaz à effet de serre
DPE ANCIENNE VERSION
En savoir plusClasse énergie et classe climat
Consommation énergetique
en kWhEP/m2.an
|
20
|
Emissions de Gaz à effet de serre
en kgeq CO2/m2.an
|
6
|
DPE ANCIENNE VERSION
Connexion internet
| | Cuivre DSL de 3 à 8 Mbit/s
Fibre optique plus de 1 Gbit/s
|
Données en provenance de l'Arcep
Montant estimé des dépenses annuelles d'énergie
Les dépenses d'énergie sont estimées à 63 € par an selon l'année de référence 2021.
Estimation de dépenses en fonction du bien et pour une utilisation standard sur 5 usages (chauffage, eau chaude sanitaire, climatisation, éclairage, auxiliaires).
L'agence
OLLIVIER IMMOBILIER
128 Bis boulevard de Creteil
94100 ST MAUR DES FOSSES
Tél : 0983907963
Votre conseiller pour visiter ce bien
Kevin OLLIVIER
Tél : 09.83.90.79.63
Tél mobile : 06 58 94 61 92
Contactez-nous via ce formulaire ou appelez-nous pour visiter ce bien
Ecoles, transports, sorties et commerces sur ST MAUR DES FOSSES (94100)
St Maur Des Fosses est une ville de 75 441 habitants.
Le secteur dispose de commerces de proximité, avec notamment des supermarchés ou supérettes.
En savoir plus sur St Maur Des Fosses













5 sur 5 